Listing Tools

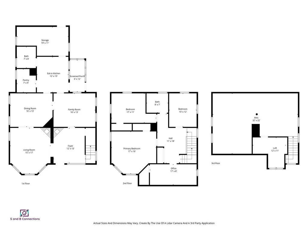
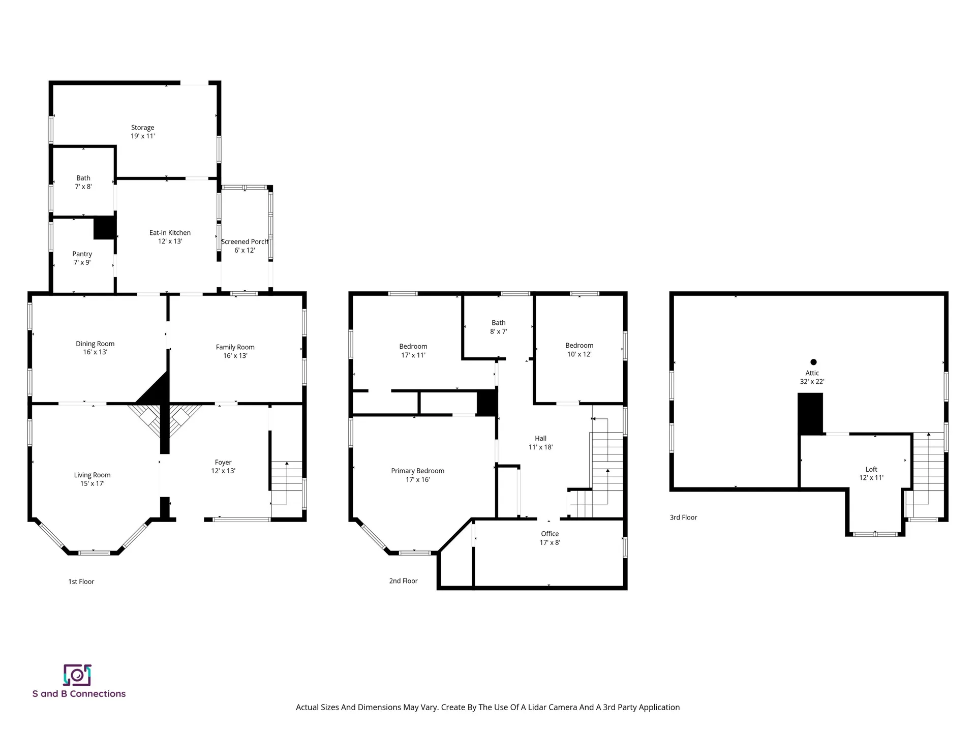
CALLING ALL INVESTORS!!! Here's your opportunity to bring back the timeless elegance of this gorgeous Victorian gem. Located in the highly sought-after North End of Manchester, this home hold's its original architectural details - from ornate trim and high ceilings to vintage hardwood floors and large windows - this property is a rare opportunity for someone with vision. The potential is endless! This rare 3BR, 2BA home is full of classic 19th-century charm offering both character and comfort. You are greeted by a grand foyer that opens into spacious a parlor, living room, dining room, and a kitchen waiting to be reimagined, featuring original hardwood floors, high ceilings, and intricate millwork. Decorative fireplaces anchor both the living room (gas) and foyer (wood), while large windows flood the space with natural light. Upstairs, you'll find three large bedrooms, a bonus room and a full bath. The full attic presents another finished room, ideal for additional sleeping area or an office, along with a huge unfinished space, high ceilings, windows and structural bones that invite creative renovation. Add'l highlights include a full basement and an attached 2 story barn-style garage w/original horse stall and hay shoot, ideal for storage or future expansion. Outside, the deep lot creates a private backyard and a convenient attached carport. Ideal for homeowners, renovators, or investors, this house could easily be transformed into true diamond! DO NOT MISS THIS GEM!

Property Details of 939 Union Street

Property Details

Interior Features

Exterior Features

Utilities and Appliances

Community

Map Location

Driving Directions

Broker Reciprocity 

Copyright 2025 PrimeMLS, Inc. All rights reserved. This information is deemed reliable, but not guaranteed. The data relating to real estate displayed on this display comes in part from the IDX Program of PrimeMLS. The information being provided is for consumers’ personal, non-commercial use and may not be used for any purpose other than to identify prospective properties consumers may be interested in purchasing. Data last updated December 11, 2025 7:38 PM EST

 

Hi there! How can we help you?

Contact us using the form below or give us a call.

Send Us A Message:

I agree to receive marketing and customer service calls and text messages from Brian Maiorino. To opt out, you can reply 'stop' at any time or click the unsubscribe link in the emails. Consent is not a condition of purchase. Msg/data rates may apply. Msg frequency varies. Privacy Policy.

Do not fill in this field:

This site is protected by reCAPTCHA and the Google Privacy Policy and Terms of Service apply.