Listing Tools

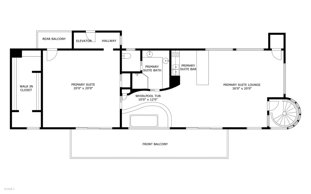
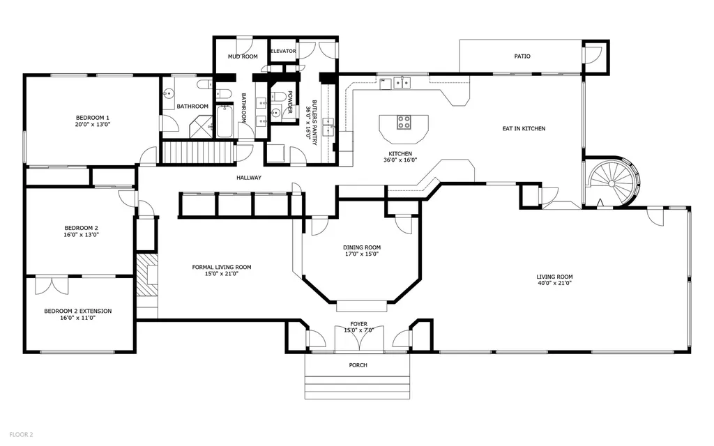
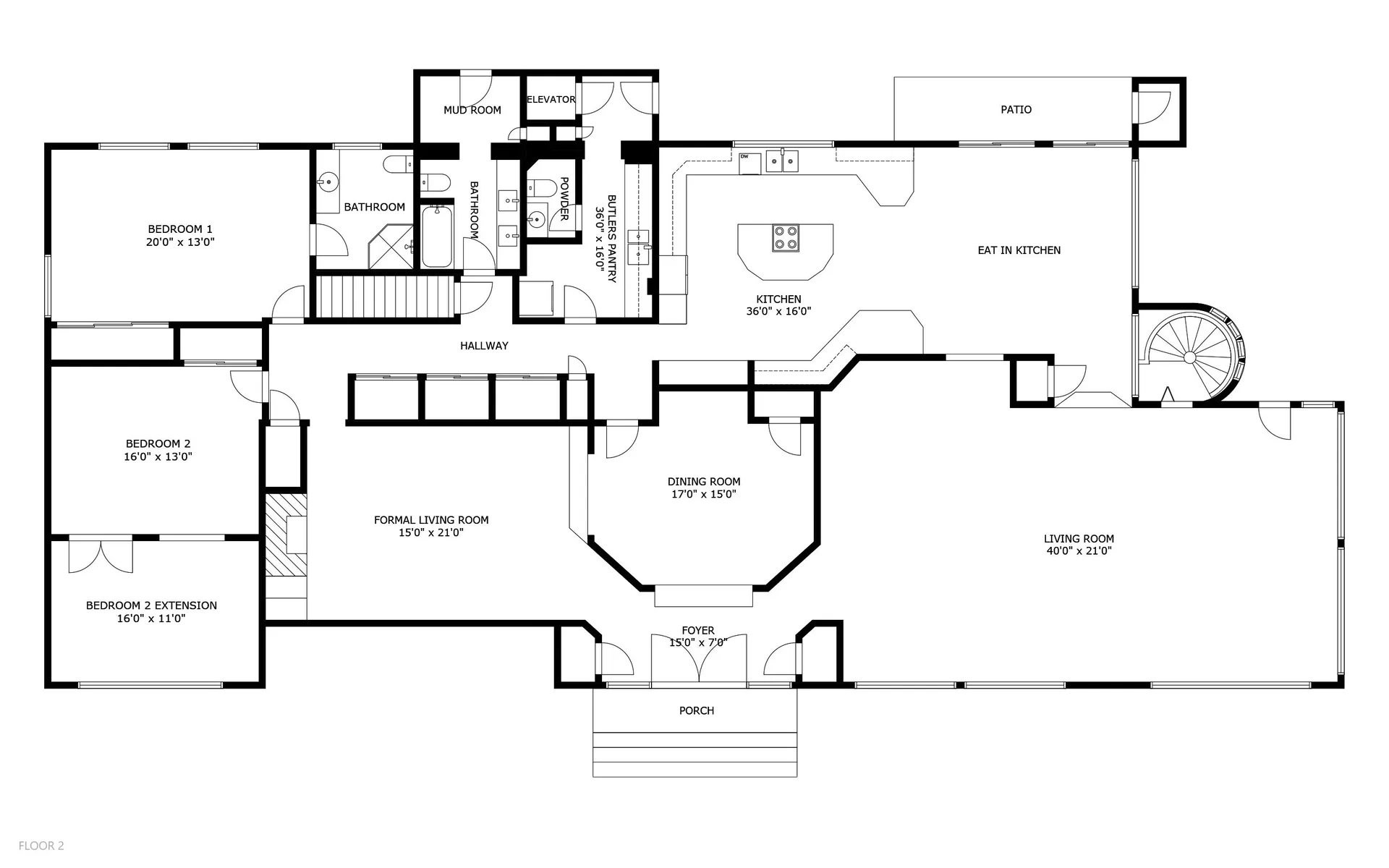
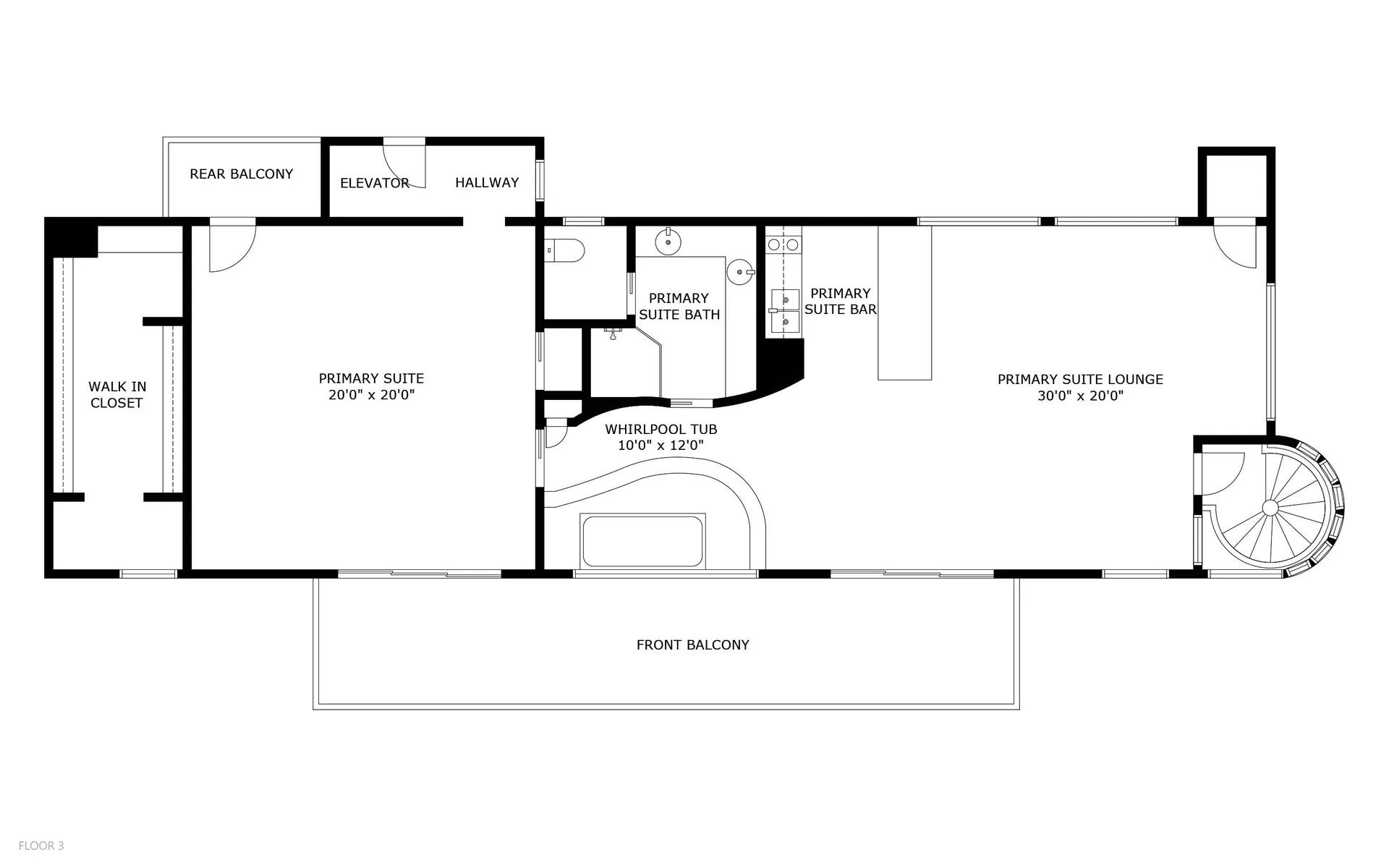
Architectural Masterpiece in Manchester's North End, Indoor Pool & Luxury Primary Suite Stunning contemporary estate in Manchester's North End offering unmatched privacy, city views, and proximity to downtown, airport, and outdoor recreation. This architecturally striking home features walls of glass, skylights, and a seamless indoor-outdoor design filled with natural light. Custom cherry woodwork, coffered ceilings, and high-end finishes are showcased throughout. Expansive great room and chef's kitchen, Sub-Zero and JennAir appliances, butler's pantry, and multiple entertaining spaces. Formal living and dining rooms feature imported fireplace, marble accents, and designer details. Flexible layout includes multiple bedrooms, and a fully equipped guest suite with kitchen and living space, two bedrooms, private bath with whirlpool tub. Resort-style indoor heated saltwater pool with waterfall and home theater. Entire top floor is a luxurious primary suite with lounge area including a wet bar with subzero and jennair appliances, private front and back balconies, spa-like bath, wet bar, elevator access, and stunning views. Rooftop deck offers panoramic city vistas. Beautifully landscaped grounds with stonework, gardens, and outdoor living areas. 4-car garage, generator hookup, advanced systems, and multi-zone heating/cooling complete this exceptional property. Private showings by appointment. Note there was on original structure from 1950, property was rebuilt in 1985+-.

Property Details of 143 High Ridge Road

Property Details

Interior Features

Exterior Features

Utilities and Appliances

Community

Map Location

Driving Directions

Broker Reciprocity 

Copyright 2026 PrimeMLS, Inc. All rights reserved. This information is deemed reliable, but not guaranteed. The data relating to real estate displayed on this display comes in part from the IDX Program of PrimeMLS. The information being provided is for consumers’ personal, non-commercial use and may not be used for any purpose other than to identify prospective properties consumers may be interested in purchasing. Data last updated April 17, 2026 1:07 AM EDT

 

Hi there! How can we help you?

Contact us using the form below or give us a call.

Send Us A Message:

I agree to receive marketing and customer service calls and text messages from Brian Maiorino. To opt out, you can reply 'stop' at any time or click the unsubscribe link in the emails. Consent is not a condition of purchase. Msg/data rates may apply. Msg frequency varies. Privacy Policy.

Do not fill in this field:

This site is protected by reCAPTCHA and the Google Privacy Policy and Terms of Service apply.